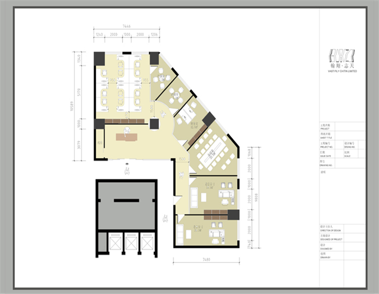
工程地址:北京市朝陽區工體東路百富國際大廈
工程面積:800平米
工程說明:
中元國信信用擔保有限公司由中國昊華化工(集團)總公司、中國水利投資公司、中國遠東國際貿易總公司、中國少數民族經濟文化開發總公司、洋浦國信海洋船務有限公司、北京世紀星源投資有限公司等六家股東共同出資設立。
較以往的辦公室裝修工程不同的是其夜間施工,時間緊、任務重,客戶的要求也相對較高;在翰翔建筑裝飾公司工程部與甲方密切配合下,按合同工期提前完成了施工任務,施工質量達到了優良標準。
工程面積:800平米
工程說明:
中元國信信用擔保有限公司由中國昊華化工(集團)總公司、中國水利投資公司、中國遠東國際貿易總公司、中國少數民族經濟文化開發總公司、洋浦國信海洋船務有限公司、北京世紀星源投資有限公司等六家股東共同出資設立。
較以往的辦公室裝修工程不同的是其夜間施工,時間緊、任務重,客戶的要求也相對較高;在翰翔建筑裝飾公司工程部與甲方密切配合下,按合同工期提前完成了施工任務,施工質量達到了優良標準。
北京翰翔建筑裝飾工程有限公司
400-090-8580


